
0 VENETIA BLVD Jacksonville, FL 32210
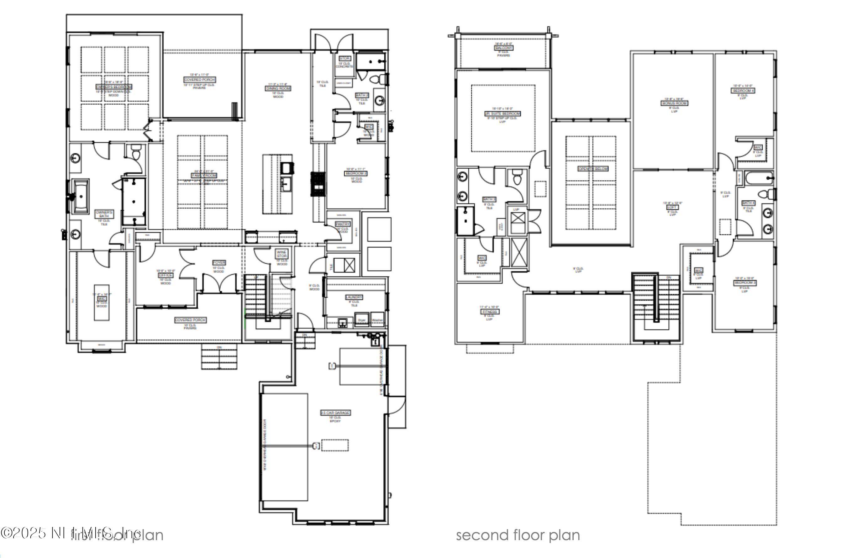
5 Beds
4 Baths
4,253 SqFt
UPDATED:
Key Details
Property Type Single Family Home, Commercial
Sub Type Single Family Residence
Listing Status Active
Purchase Type For Sale
Square Footage 4,253 sqft
Price per Sqft $503
Subdivision Venetia
MLS Listing ID 2067362
Style Craftsman
Bedrooms 5
Full Baths 4
Construction Status To Be Built
HOA Y/N No
Year Built 2025
Annual Tax Amount $7,623
Property Sub-Type Single Family Residence
Source realMLS (Northeast Florida Multiple Listing Service)
Property Description
Location
State FL
County Duval
Community Venetia
Area 033-Ortega/Venetia
Direction Driving North on Roosevelt Blvd, exit onto Ortega Blvd. Continue until the intersection of Ortega Blvd & Venetia Blvd. Make a left. The property sits to your left.
Interior
Interior Features Ceiling Fan(s), Eat-in Kitchen, Entrance Foyer, In-Law Floorplan, Jack and Jill Bath, Kitchen Island, Pantry, Primary Bathroom -Tub with Separate Shower, Primary Downstairs, Smart Thermostat, Vaulted Ceiling(s), Walk-In Closet(s), Wine Cellar
Heating Central
Cooling Central Air
Flooring Wood
Laundry Lower Level
Exterior
Exterior Feature Balcony
Parking Features Garage
Garage Spaces 3.0
Utilities Available Electricity Available, Sewer Available, Water Available, Propane
Waterfront Description Canal Front,River Access
View Canal
Roof Type Shingle
Porch Covered, Rear Porch
Total Parking Spaces 3
Garage Yes
Private Pool No
Building
Lot Description Cleared
Water Public
Architectural Style Craftsman
Structure Type Fiber Cement,Stucco
New Construction Yes
Construction Status To Be Built
Others
Senior Community No
Tax ID 1026020000
Acceptable Financing Cash, Conventional, FHA
Listing Terms Cash, Conventional, FHA






